ABC No Rio Dinero: The Story of a
Lower East Side Art Gallery
Edited by Marc Miller and ABC No Rio co-founder Alan Moore; cover art by Joseph Nechvatal.
| |
|
|
|
|
|
|
|
|
|
|
|
|
|
|
|
|||
| |
|
|
|
![]() |
|
|
||||||||||||
| |
|
|
|
|||||||||||||||
| |
|
|
||||||||||||||||
| |
|
|
|
|||||||||||||||
| |
|
|
|
|||||||||||||||
| |
|
|
||||||||||||||||
| |
|
|
|
|||||||||||||||
| |
|
|||||||||||||||||
| |
|
|||||||||||||||||
| |
|
|||||||||||||||||
CEASEFIRE NOW
Mailing ListSupport ABC No Rio!
ABC No Rio Dinero: The Story of a Lower East Side Art Gallery Edited by Marc Miller and ABC No Rio co-founder Alan Moore; cover art by Joseph Nechvatal. |
Steven Englander Memorial Fundraiser: ABC No Rio Building FundIn honor of our late, former director, Steven Englander, we have set up a memorial fundraiser. With less than 14 months to go until we open our new building, we still have much funds to raise. Any donation, big or small, will help us open the doors to our permanent home to inspire and nurture the next generations of DIY artists, dreamers, and co-conspirators. A vision Steven dedicated his life towards. > Click here to view the Steven Englander Memorial Fundraiser <
Zine Swap: ABC No Rio X Bluestockings - 07.19.2025![]() We’re cohosting a zine swap with our neighbors over at Bluestockings on July 19th, 2-6 PM! Food Not Bombs & Don’t Forget the Streets are bringing zines & harm redux supplies, our friends at Centro Corona are teaching a know your rights workshop midway through the day, and Paperthirst will be running a zine-making station. Also, just across the road, the ABC No Rio zine library will be having open hours throughout the day. Bring a zine, make a friend (or make zine, bring a friend), don’t overthink either! Address: 116 Suffolk St, 10002. Pest: Our Latest Exhibition Now Open![]() The ABC No Rio Visual Arts Collective presents Pest - a group exhibition that examines what unnerves us most, what makes us uncomfortable, irked, annoyed, eerie or just plain creeps us out. We endure pests and we fight them, yet they never seem to quite go away. The participating artists explore notions of pests, how we feel about pests, our interactions, and our relationships to them. The exhibition is on display on the 4th floor of the Clemente Soto Velez Center (107 Suffolk Street, 10002), Tuesday to Sunday 10am to 7pm.
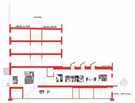
Design for a New No RioABC No Rio's new facility has been designed by local architect Paul Castrucci. It features a planted facade suggestive of the utopian vision of the Lower East Side described by Peter Lamborn Wilson in Avant Gardening, and will be constructed in line with our environmental politics, utilizing sustainable design principles. (read more) Your support is important!
Featured Project
Breaking Ground
|
News
Upcoming event: 07.19.2025 - Zine Swap
Come hang with us at Bluestockings on the 19th! Come make a zine, take a zine, bring a friend, make a friend!
06/27 - 08/03 - Our latest art exhibition is on display at 107 Suffolk St.
'Pest' is open until August 3rd. <
06/20/2025 - Our new building is on the rise!
Take a virtual walkthrough of our building site as its being built! The NYT writes on our history, recent groundbreaking and more. We broke ground on our new building! |
|